Back to listings
Property Details
C-21 rue Duquesne
A bright two-storey apartment with a practical main-floor living area, two private bedrooms upstairs, and modern finishes throughout. The home is designed for easy day-to-day living, with included parking, in-unit laundry, air conditioning, and quick access to UQO, downtown Hull, and Ottawa.
$1,695 CAD/mo
Hull, Gatineau · Near UQO
Brand newA/CIn-unit laundryParking includedPet-friendly
1 / 7
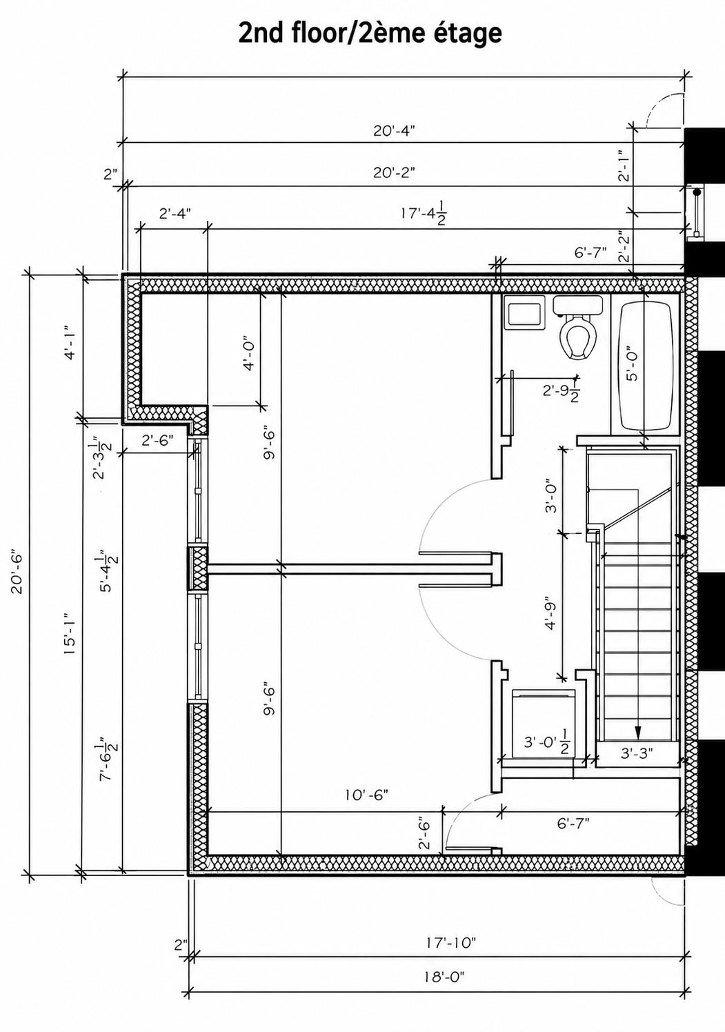
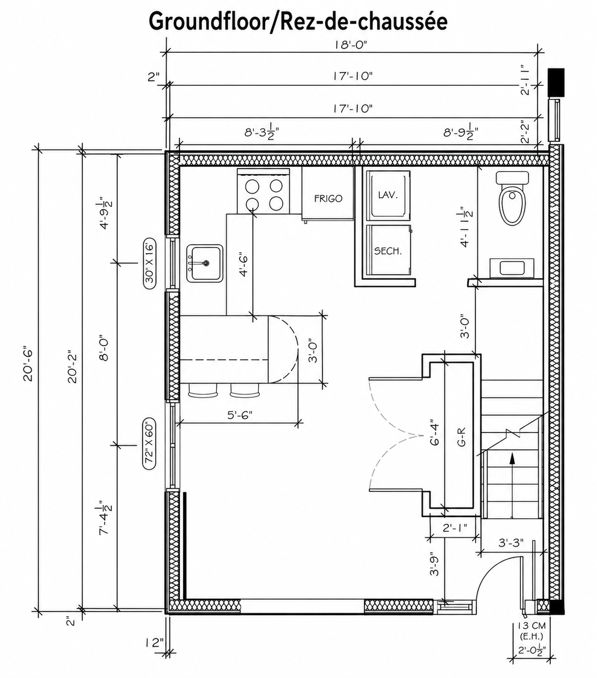
Furnished Floor Renders
See each floor at a glance.
Simple furnished views of each level, built from the architectural plan to help visitors picture the rooms before visiting.
Addition-only visualization based on the actual architectural plan. Furniture and placements are illustrative.